Negozio in affitto

Moncalieri, Via Guido Rossa - Nasi
€ 1.800 / mese
1 locale 1 locale
280 Mq 280 Mq
2 bagni 2 bagni

Negozio in affitto

Moncalieri, Via Guido Rossa - Nasi

Descrizione annuncio

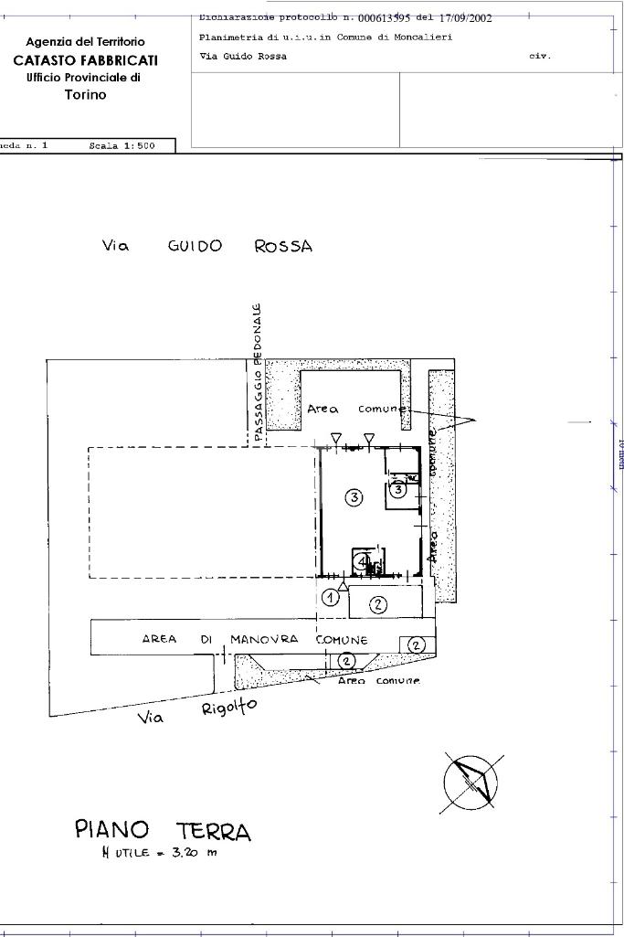
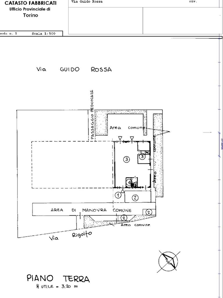
Moncalieri, zona Vadò, Via Guido Rossa, al confine con Trofarello, si propone in affitto locale commerciale di 280 mq al piano terra, openspace con retro, piccoli ufficio e doppi servizi interni con antibagno. Ampia area espositiva. La costruzione, risalente al 1990, presenta una struttura solida e ben mantenuta, con ampie vetrine che garantiscono un'ottima visibilità e luminosità neturale. La disposizione interna è versatile, permettendo di adattare gli spazi alle specifiche esigenze dl tuo business. Riscaldamento e raffrescamento autonomi. Libero subito. Prezzo oltre Iva.

Per ricevere maggiori informazioni o per visionare l'immobile, sono disponibili le nostre linee telefoniche da rete fissa 0116828254, da rete mobile 3939115561, via posta elettronica all'indirizzo mail oppure visitando il nostro sito web

Mostra tutto

Nelle vicinanze

Trasporto pubblico Trasporto pubblico
Trofarello
Trofarello
830 m
Moncalieri (v. Postiglione/v. F.lli Ceirano)
Moncalieri (v. Postiglione/v. F.lli Ceirano)
250 m
Ridolfo
Ridolfo
270 m
Ricariche auto elettriche Ricariche auto elettriche
Tesla Supercharger Moncalieri - Tulip Inn Turin South Hotel
60 m
Trofarello Stazione | EnelX
910 m
Trofarello Battisti | EnelX
1,4 Km
Trofarello Resistenza | EnelX
1,5 Km
Scuole Scuole
Scuola Secondaria I grado Giacomo Leopardi
1,3 Km
Scuola primaria “Giovanni Pascoli”
1,4 Km
Farmacia Farmacia
Farmacia
960 m
Farmacia Moriondo
1,3 Km
Farmacia Trisoglio
1,4 Km
Farmacia Sant'Alberto
1,8 Km
Supermercati Supermercati
Supermercati
950 m
Non Solo Materassi
970 m
MD Trofarello
1,8 Km
Porte di Moncalieri
2,2 Km
Negozi Negozi
Tribeca
1,8 Km
Stefanel
1,8 Km
Zeta
1,8 Km
Dico
1,9 Km
Kiabi
2,0 Km
Bar Bar
Bar Roma
1,0 Km
Bar
1,7 Km
Bar-Tabaccaio Maglione
1,8 Km
Speed Food
1,8 Km
Facis
1,9 Km
Ristoranti Ristoranti
Rossopomodoro
1,6 Km
Roadhouse
1,6 Km
Old Wild West
1,6 Km
Wok Royal
1,6 Km
Tommy Tegamino
1,7 Km
Mostra tutto

Caratteristiche

Rif.:
61148757
Piano:
1 di 1 (Piano terra)
Condizionamento:
Autonomo
Riscaldamento:
Autonomo
Libero:
Anno di costruzione:
1990
Mostra tutto
Prezzo Prezzo
€ 1.800 / mese
Spese annue Spese annue
€ 0

Altre caratteristiche

Descrizione dei locali
Bagno Cieco

Classe Energetica

E
E
E
E
E
E
E
E
E
EP globale non rinnovabile:
15.04 kW h/m² anno
Anno di costruzione:
1990
Riscaldamento:
Autonomo
Tipo impianto:
A radiatori
Tipo alimentazione:
Metano

Ti interessa visionare l'immobile?

Fissa un appuntamento  Fissa un appuntamento

Richiedi informazioni

Clicca su Leggi per aprire l'informativa
* Questi campi sono obbligatori
Affiliato
Moncalieri Immobili Per L'Impresa Sas
St.da Carignano, 2 10024 Moncalieri (TO)

Il nostro staff


  • Andrea Zanoni
    Affiliato

  • Federica Pomba
    Coordinatrice
St.da Carignano, 2 10024 Moncalieri (TO)
Zona: Moncalieri-Trofarello-Cambiano-La Loggia-Nichelino-Santena-Poirino-Chieri-Vinovo-Carignano
Mostra su mappa
Orari: Dal Lunedì al Venerdì dalle 09.00 alle 12.30 - 14.30 alle 19.30 -Sabato dalle 9.00 alle 12.30
Affiliato
Moncalieri Immobili Per L'Impresa Sas
St.da Carignano, 2 10024 Moncalieri (TO)

2026 Tecnocasa Franchising S.p.A. - P. IVA 08365160152 - Via Monte Bianco 60/A 20089 Rozzano (MI). Ogni agenzia ha un proprio titolare ed è autonoma. Privacy policy | Policy utilizzo | Cookie policy